
Фильтр ФГГ-1000
цена от
2 348 800 руб.
- Исполнение – горизонтальное
- Номинальный диаметр DN – 200 мм
- Номинальное давление PN – до 10,0 МПа
- Тонкость фильтрации – 4, 8, 12, 16 или 25 мм
- Максимальная производительность – 5100 м³/ч
- Материал корпуса – 09Г2С / 12Х18Н10Т / другая сталь
- Блочное исполнение – опционально
- Теплоизоляция – опционально
- Комплектация КИП, ЗРА – опционально
- Резервные фильтрующие элементы – опционально
Нефтяной фильтр ФГГ-1000 (DN 1000, 5100 м³/ч) — флагманская модель для магистральных нефтепроводов и экспортных терминалов. Фильтр обеспечивает очистку нефти с содержанием механических примесей до 20%, предотвращая простои на критически важных объектах. Внутренний диаметр корпуса 1600 мм позволяет работать с высоковязкими средами без риска засорения.
Примеры применения грязеуловителя ФГГ 1000
- Антикоррозийное покрытие: Нанесение эпоксидных смол для защиты от агрессивных сред.
- Высокая пропускная способность.
- Корпус из нержавеющей или углеродистой стали.
Особенности нефтяного фильтра ФГГ-200
- Компактные габариты позволяют устанавливать фильтр в ограниченном пространстве.
- Универсальность давления: Рабочее давление до 10 МПа делает модель пригодной для участков с высокими нагрузками.
- Быстросъемные кассеты: Замена фильтрующих элементов выполняется за 30–40 минут без остановки процесса.
- Экономичность: Снижение затрат на обслуживание насосов за счет защиты от абразивных частиц.
Технические параметры фильтра для нефти ФГГ-1000
| Обозначение | Фильтр ФГГ-1000 |
| Производительность, м³/ч | 5100 |
| Условное давление, Pу, МПа | 1,6; 2,5; 4,0; 6,3; 8,0 или 10,0 |
| Температура нефти, ℃ | От -15 до +80 |
| Температура нефтепродуктов, ℃ | От -20 до +80 |
| Степень фильтрации, мм | 4, 8, 12, 16 или 25 |
| DN, мм | 1000 |
| Dp, мм (внутренний диаметр корпуса) | 1600 |
| L, мм (расстояние от фланца корпуса до кромки осевого патрубка) | 6850 |
| L1, мм (расстояние от оси бокового патрубка) | 1930 |
| H, мм (расстояние от оси ФГГ до опоры) | 1500 |
| L2, мм (расстояние между опорами) | 4440 |
| L3, мм (расстояние до опоры) | 1760 |
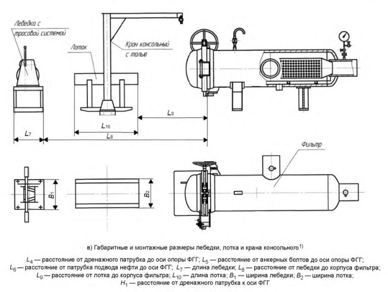
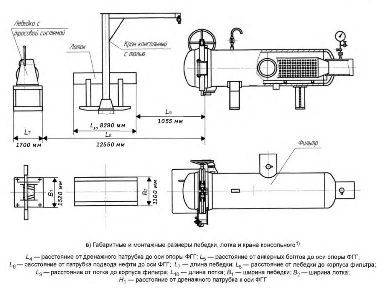
| Обозначение | Блочный фильтр ФГГ-1000 |
| L7, мм (длина лебедки) | 1700 |
| L8, мм (расстояние от лебедки до корпуса фильтра) | 12550 |
| L9, мм (расстояние от лотка до корпуса фильтра) | 1055 |
| L10, мм (длина лотка) | 8290 |
| В2, мм (ширина лотка) | 1100 |
| В1, мм (ширина лебедки) | 1520 |
| L5, мм (расстояние от анкерных болтов до оси опоры ФГГ) | 100 |
| L6, мм (расстояние от патрубка подвода нефти до оси ФГГ) | 1250 |
| L4, мм (расстояние от дренажного патрубка к оси опоры) | 1960 |
| Н1, мм (расстояние от дренажного патрубка до оси ФГГ) | 1000 |
| Радиус вылета быстроразъемного концевого затвора, мм | 2220 |
| Количество штурвалов быстроразъемного концевого затвора, шт | 2 |
Чертеж фильтра ФГГ-1000
Чертеж блочного фильтра ФГГ-1000
Расшифровка условного обозначения
Например, фильтр грязеуловитель горизонтальный ФГГ номинальным диаметром DN 1000 на номинальное давление PN 2,5 МПа, блочного исполнения, с осевым отводом нефти или нефтепродуктов, с правым расположением патрубка подвода нефти или нефтепродуктов, в сейсмостойком исполнении С по MSK — 64 [10], без теплоизоляции, вид климатического исполнения УХЛ1 по ГОСТ 15150 будет обозначаться следующим образом: ФГГ-1000-2,5-Б-0-П-С-УХЛ1.
Преимущества ООО "УЗСК"
- Собственная лаборатория неразрушающего контроля.
- Участие в тендерах на поставку оборудования для госкомпаний.
- Разработка РКД по ТЗ заказчика.
- Производство оборудования любой сложности.
Каждый типоразмер ФГГ от ООО «УЗСК» — это сочетание инновационных технологий, надежности и адаптивности под задачи заказчика. Мы гарантируем качество, подтвержденное испытаниями, и оперативную логистику в Надым и любую точку ЕАЭС.
Заполните форму заказа






